服务热线:150 0066 6432
沃茈阀门(上海)有限公司生产销售的Z941H电动法兰闸阀广泛适用于石油化工,火力发电厂等油品、水蒸气管路上作接通或截断管路中介质的启闭装置。
一、Z941H电动法兰闸阀特点
(1)流动阻力小。阀体内部介质通道是直通的,介质成直线流动,流动阻力小。
(2)启闭时较省力。是与截止阀相比而言,因为无论是开或闭,闸板运动方向均与介质流动方 向相垂直。
(3)高度大,启闭时间长。闸板的启闭行程较大,降是通过螺杆进行的。
(4)水锤现象不易产生。原因是关闭时间长。
(5)介质可向两侧任意方向流动,易于安装。闸阀通道两侧是对称的。
(6)结构长度(系壳体两连接端面之间的距离)较小。
(7)密封面易磨损,影响使用寿命。启闭时,闸板与阀座两个密封面相互摩擦滑动,要介质压力作用下易产生擦伤磨损,影响密封性能,缩短使用寿命。
(8)价格较贵。接触密封面较多,加工较复杂,特别是闸板座上的密封面不易加工,而且零件较多。
(9)形体简单 , 结构长度短,制造工艺性好,适用范围广。
(10)结构紧凑,阀门刚性好,通道流畅,流阻数小,密封面采用不锈钢和硬质合金,使用寿命长,采用ptfe填料,密封可靠,操作轻便灵活。
二、Z941H电动法兰闸阀特点-性能规范
型号 | 公称压力 | 实验压力 | 工作温度(℃) | 适用介质 | ||
强度水(mpa) | 密封(水)空气(mpa) | 低压密封空气(mpa) | ||||
z41h-16c | 1.6 | 2.4 | 1.8 | 0.6 | ≤425 | 硝酸类 |
z41w-25p(r) | 2.5 | 3.8 | 2.8 | 0.6 | ≤200 | 醋酸类 |
z41w-40p(r) | 4.0 | 6.0 | 4.4 | 0.6 | ≤200 | 硝酸类 |
z41w-64p(r) | 6.4 | 9.6 | 7.0 | 0.6 | ≤200 | 醋酸类 |
三、Z941H电动法兰闸阀特点-主要零件材质
阀体/阀盖 | zgicr18ni9ti | zg00cr18ni10 | zg1cr18ni12m02ti | zg00cr17ni14m02 | wcb |
零件名称 | zgicr18ni9tit系列 | zg00cr18ni10系列 | zg1cr18ni12m02ti系列 | zg00cr17ni14m02系列 | wcb系列 |
闸板 | zgicr18ni9ti | zg00cr18ni10 | zg1cr18ni12m02ti | zg00cr17ni14m02 | 1cr13 |
阀杆 | 1cr18ni9ti | 00cr18ni10 | 1cr18ni12m02ti | 00cr17ni14m02 | 1cr13 |
填料 | ptfe编织 | ptfe编织 | ptfe编织 | ptfe编织 | 石墨 |
垫片 | 304l+ptfe | 304l+ptfe | 316+ptfe | 316l+ptfe | 石墨 |
压盖 | zgicr18ni9ti | zg00cr18ni10 | zg1cr18ni12m02ti | zg00cr17ni14m02系列 | wcb |
填料压环 | 1cr18ni9ti | 00cr18ni10 | 1cr18ni12m02ti | 00cr17ni14m02 | 1cr13 |
螺栓 | 1cr17ni2 | 1cr17ni2 | 1cr17ni2 | 1cr17ni2 | 35crmoa |
螺母 | 1cr18ni9ti | 1cr18ni9ti | 1cr18ni9ti | 1cr18ni9ti | 45 |
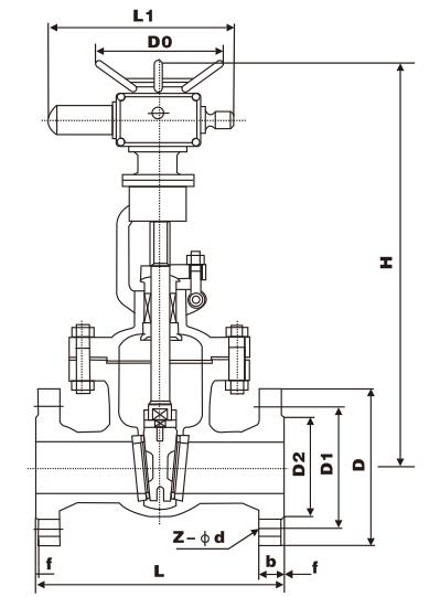
四、Z941H电动法兰闸阀特点主要外形尺寸及重量

| 公称压力 pn(mpa) | 通径 dn(mm) | l | d | d1 | d2 | b | z-?d | d3 | h | h1 | d0 | 重量 (kg) |
| 1.6 | 40 | 240 | 150 | 110 | 88 | 20 | 4-?17.5 | 164 | 602 | 602 | 300 | 68 |
| 50 | 250 | 165 | 125 | 102 | 20 | 4-?17.5 | 164 | 610 | 610 | 300 | 69 | |
| 65 | 270 | 185 | 145 | 122 | 20 | 4-?17.5 | 164 | 612 | 612 | 300 | 80 | |
| 80 | 280 | 200 | 160 | 133 | 20 | 8-?17.5 | 195 | 690 | 690 | 300 | 83 | |
| 100 | 300 | 220 | 180 | 158 | 20 | 8-?17.5 | 220 | 833 | 833 | 300 | 94 | |
| 125 | 325 | 250 | 210 | 184 | 22 | 8-?17.5 | 268 | 867 | 876 | 300 | 125 | |
| 150 | 350 | 285 | 240 | 212 | 24 | 8-?22 | 280 | 958 | 958 | 300 | 160 | |
| 200 | 400 | 340 | 295 | 268 | 26 | 12-?22 | 370 | 1096 | 1096 | 300 | 225 | |
| 250 | 450 | 405 | 355 | 320 | 30 | 12-?26 | 460 | 1244 | 1244 | 300 | 348 | |
| 300 | 500 | 460 | 410 | 370 | 30 | 12-?26 | 530 | 1430 | 1474 | 400 | 485 | |
| 350 | 550 | 520 | 470 | 430 | 34 | 16-?26 | 610 | 1565 | 1663 | 400 | 696 | |
| 400 | 600 | 580 | 525 | 482 | 36 | 16-?30 | 710 | 1735 | 1886 | 400 | 1000 | |
| 500 | 700 | 715 | 650 | 585 | 44 | 20-?33 | 5860 | 1961 | 2181 | 400 | 1064 |