服务热线:150 0066 6432
一、沃茈阀门(上海)有限公司生产销售的封闭式插板阀产品结构特点:
1、阀门采用全封闭结构,操作时介质不会向外泄漏,操作安全环境污染。
2、阀体采用整体框架式结构,刚性好,能承受高的介质压力。
3、密封副部位采用不锈钢与橡胶密封,密封圈为双凸型密封可靠。
4、密封圈装在阀板上,便于更换。
5、伸缩体与固定套之间采用多层波纹管连接,适用寿命长,密封更可靠,波纹管内安装填料式耐磨套,粉尘不进入波纹管内。
6、夹紧机构采用闭环式多点夹紧,同步性好。
7、特制的控杆和顶轮机构,确保阀板运行无摩擦。
8、设有氮气吹扫孔,以便吹扫阀座和传动部位积灰,开启灵活。
9、底部设有排水管接口,将阀箱内积水排出。
10、夹紧、松开和阀板行走采用全电动驱动。操作方便,性能稳定,电装带手动机构,手、电动可实现无忧动切换。
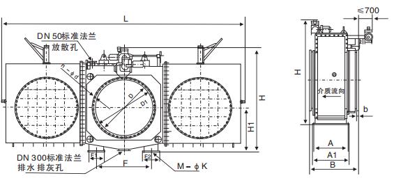
二、封闭式插板阀产品主要尺寸:

dn | l | d | d1 | b | n-d | l1 | h | h1 | b | b1 | a | c | c1 | c2 | e1 | e2 | n1-d1 |
800 | 3900 | 975 | 920 | 26 | 24-30 | 1545 | 1970 | 750 | 1070 | 650 | 1150 | 950 | 350 | 300 | 250 | 220 | 12-32 |
900 | 4400 | 1075 | 1020 | 28 | 24-30 | 2200 | 2028 | 890 | 1100 | 700 | 1150 | 950 | 350 | 300 | 250 | 220 | 12-32 |
1000 | 4735 | 1175 | 1120 | 30 | 28-30 | 2368 | 2230 | 960 | 1100 | 700 | 1250 | 950 | 350 | 300 | 250 | 220 | 12-32 |
1200 | 6214 | 1375 | 1320 | 30 | 32-30 | 3105 | 2570 | 1060 | 1100 | 700 | 1450 | 950 | 300 | 300 | 250 | 220 | 12-32 |
1400 | 6915 | 1575 | 1520 | 30 | 36-30 | 3400 | 2850 | 1180 | 1200 | 800 | 1450 | 950 | 350 | 300 | 250 | 220 | 12-32 |
1600 | 7630 | 1790 | 1730 | 30 | 40-30 | 3600 | 3150 | 1350 | 1200 | 800 | 1150 | 920 | 250 | 720 | 475 | 630 | 16-26 |
1800 | 8068 | 1990 | 1930 | 30 | 44-30 | 3700 | 3565 | 1580 | 1400 | 950 | 1150 | 920 | 250 | 720 | 475 | 630 | 16-26 |
2000 | 8718 | 2190 | 2130 | 30 | 48-30 | 3855 | 3825 | 1720 | 1500 | 950 | 1924 | 1044 | 522 | 720 | 280 | 512 | 16-26 |
2200 | 9320 | 2405 | 2430 | 32 | 52-33 | 4285 | 4150 | 1820 | 1550 | 950 | 2030 | 1044 | 522 | 810 | 280 | 606 | 16-26 |
2400 | 10000 | 2605 | 2540 | 32 | 56-33 | 4615 | 4660 | 1960 | 1550 | 1016 | 2130 | 1130 | 565 | 820 | 300 | 710 | 16-26 |
2600 | 10700 | 2805 | 2740 | 34 | 60-33 | 5100 | 5150 | 2050 | 1550 | 1016 | 2130 | 1130 | 565 | 820 | 300 | 710 | 16-26 |