服务热线:150 0066 6432
一、Q347F不锈钢涡轮固定球阀产品用途:
沃茈阀门(上海)有限公司生产销售的Q347F不锈钢涡轮固定球阀适用于工作温度-28~300℃的石油、化工、火力电站等各种工况的管路上,切断或接通介质。适用介质为:水、蒸汽、油品、硝酸、醋酸、尿素等腐蚀性和强氧化性介质。操作方式有:手动、气动、电动、液动和气液联动等。
二、Q347F不锈钢涡轮固定球阀产品结构特点:
1、使用寿命长、密封环选用自润滑聚四氟乙烯材料。球体与密封环微摩擦,有效提高使用寿命。
2、体积小,重量轻,易于安装保养。
3、固定球阀结构可任意方向安装与管路的任何部位。
4、v型接叠轴向填料,达到防腐a级密封。
三、Q347F不锈钢涡轮固定球阀压力试验:
| 公称压力 | 1.6 | 2.5 | 4.0 |
| 强度试验 | 2.4 | 3.8 | 6.0 |
| 水密封试验 | 1.8 | 2.8 | 4.4 |
| 气密封试验 | 0.4-0.7 | ||
四、Q347F不锈钢涡轮固定球阀主要零件材料及性能:
| 阀体 | wcb | zg1cr18ni9ti | cf8 | cf3 | zg1cr18ni12mo2ti | cf8m | cf3m |
| 球体阀杆 | 2cr13 | 1cr18ni9ti | 304 | 304l | 1cr18ni12mo2ti | 316 | 316l |
| 阀座 | 聚四氟乙烯ptfe加坡纤增强聚四氟乙烯ptfe+glass对位聚笨ppl | ||||||
| 垫片 | 聚四氟乙烯ptfe不锈钢/柔性石墨/齿形垫片 | ||||||
| 阀杆座 | 聚四氟乙烯ptfe不锈钢/柔性石墨 | ||||||
| 填料 | 聚四氟乙烯ptfe增强柔性石墨 | ||||||
| 填料压盖 | wcb | 1cr18ni9ti | 304 | 304l | 1cr18ni12mo2ti | 316 | 316l |
| 温度 | -29~150(聚四氟乙烯ptfe)-29~200(加玻纤增强聚四氟乙烯ptfe+glass)-29~300(对位聚笨ppl) | ||||||
| 介质 | 水蒸汽油品 | 硝酸类 | 强氧化介质 | 醋酸类 | 尿素类 | ||
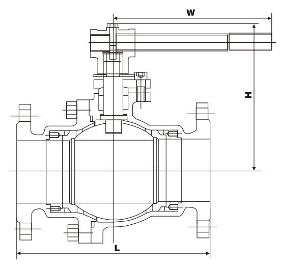
五、Q347F不锈钢涡轮固定球阀规格主要尺寸:

| 1.6mpa | dn | l | d | d1 | d2 | b | n-φd | h0 | h1 | h2 |
凸面法兰 q347f 16c 16p 16r | 32 | 140 | 135 | 100 | 78 | 16 | 4-18 | 30 | 85 | 160 |
| 40 | 165 | 145 | 110 | 85 | 16 | 4-18 | 32 | 95 | 230 | |
| 50 | 178 | 160 | 125 | 100 | 16 | 4-18 | 43 | 107 | 230 | |
| 65 | 190 | 180 | 145 | 120 | 18 | 4-18 | 70 | 142 | 400 | |
| 80 | 203 | 195 | 160 | 135 | 20 | 8-18 | 110 | 152 | 400 | |
| 100 | 305 | 215 | 180 | 155 | 20 | 8-18 | 150 | 178 | 500 | |
| 125 | 356 | 245 | 210 | 185 | 22 | 8-18 | 200 | 252 | 500 | |
| 150 | 394 | 280 | 240 | 210 | 24 | 8-23 | 230 | 278 | 600 | |
| 200 | 457 | 335 | 295 | 265 | 26 | 12-23 | 260 | 395 | 600 | |
| 250 | 533 | 405 | 355 | 320 | 30 | 12-25 | 283 | 480 | 800 | |
| 300 | 610 | 460 | 410 | 375 | 30 | 12-25 | 380 | 585 | 800 | |
| 350 | 686 | 520 | 470 | 435 | 34 | 16-25 | 425 | 625 | 800 | |
| 400 | 762 | 580 | 525 | 485 | 36 | 16-30 | 492 | 720 | 800 | |
| 500 | 914 | 705 | 650 | 608 | 44 | 20-34 | 555 | 840 | 830 | |
| 600 | 1067 | 840 | 770 | 718 | 48 | 20-41 | 675 | 1050 | 830 | |
| 700 | 1245 | 910 | 940 | 788 | 50 | 24-41 | 850 | 1150 | 830 |
| 2.5mpa | dn | l | d | d1 | d2 | b | n-φd | h0 | h1 | h2 |
凸面法兰 q347f 25 25p 25r | 32 | 180 | 135 | 100 | 78 | 18 | 4-18 | 30 | 85 | 160 |
| 40 | 190 | 145 | 110 | 85 | 18 | 4-18 | 32 | 95 | 230 | |
| 50 | 216 | 160 | 125 | 100 | 20 | 4-18 | 43 | 107 | 230 | |
| 65 | 241 | 180 | 145 | 120 | 22 | 8-18 | 70 | 142 | 400 | |
| 80 | 283 | 195 | 160 | 135 | 22 | 8-18 | 110 | 152 | 400 | |
| 100 | 305 | 230 | 190 | 160 | 24 | 8-23 | 150 | 178 | 500 | |
| 125 | 381 | 270 | 220 | 188 | 28 | 8-25 | 200 | 252 | 500 | |
| 150 | 403 | 300 | 250 | 218 | 30 | 8-25 | 230 | 278 | 600 | |
| 200 | 502 | 360 | 310 | 278 | 34 | 12-25 | 260 | 395 | 600 | |
| 250 | 568 | 425 | 370 | 332 | 36 | 12-30 | 283 | 480 | 800 | |
| 300 | 648 | 485 | 430 | 390 | 40 | 16-30 | 380 | 585 | 800 | |
| 350 | 762 | 550 | 490 | 448 | 44 | 16-34 | 425 | 625 | 800 | |
| 400 | 838 | 610 | 550 | 505 | 48 | 16-34 | 492 | 720 | 800 | |
| 500 | 991 | 730 | 660 | 610 | 52 | 20-41 | 555 | 840 | 830 | |
| 600 | 1143 | 840 | 770 | 718 | 56 | 20-41 | 675 | 1050 | 830 | |
| 700 | 1346 | 955 | 875 | 815 | 60 | 24-48 | 850 | 1150 | 830 |
| 4.0mpa | dn | l | d | d1 | d2 | d6 | b | n-φd | h0 | h1 | h2 |
凸凹法兰 q347f 40 40p 40r | 32 | 180 | 135 | 100 | 78 | 66 | 18 | 4-18 | 30 | 85 | 160 |
| 40 | 190 | 145 | 110 | 85 | 76 | 18 | 4-18 | 32 | 95 | 230 | |
| 50 | 216 | 160 | 125 | 100 | 88 | 20 | 4-18 | 43 | 107 | 230 | |
| 65 | 241 | 180 | 145 | 120 | 110 | 22 | 8-18 | 70 | 142 | 400 | |
| 80 | 283 | 195 | 160 | 135 | 121 | 22 | 8-18 | 110 | 152 | 400 | |
| 100 | 305 | 230 | 190 | 160 | 150 | 24 | 8-23 | 150 | 178 | 500 | |
| 125 | 381 | 270 | 220 | 188 | 176 | 28 | 8-25 | 200 | 252 | 500 | |
| 150 | 403 | 300 | 250 | 218 | 204 | 30 | 8-25 | 230 | 278 | 600 | |
| 200 | 502 | 375 | 320 | 282 | 260 | 38 | 12-30 | 260 | 395 | 600 | |
| 250 | 568 | 445 | 385 | 345 | 313 | 42 | 12-34 | 283 | 480 | 800 | |
| 300 | 648 | 510 | 450 | 408 | 364 | 46 | 16-34 | 380 | 585 | 800 | |
| 350 | 762 | 570 | 510 | 465 | 422 | 52 | 16-34 | 425 | 625 | 800 | |
| 400 | 838 | 655 | 585 | 535 | 474 | 58 | 16-41 | 492 | 720 | 800 | |
| 500 | 991 | 755 | 670 | 612 | 576 | 62 | 20-48 | 555 | 840 | 830 | |
| 600 | 1143 | 890 | 795 | 730 | 678 | 62 | 20-54 | 675 | 1050 | 830 | |
| 700 | 1346 | 995 | 900 | 835 | 768 | 68 | 24-54 | 850 | 1150 | 830 |