服务热线:150 0066 6432
一、Q347F/W/H/Y铸钢固定球阀产品概述:
沃茈阀门(上海)有限公司生产销售的Q347F/W/H/Y铸钢固定球阀二片式结构,其中部螺纹连接,并以ptfe垫片密封;另一种是三片式结构,中部用螺栓栓结。根据所选的阀座与垫片/填料的材料不同,适应不同的工作温度和介质。产品主要适用于化工、冶金、石油、制药等行业的各种高压介质输送管道中,适用温度:-196~450℃;驱动方式:手动、气动、电动、液动、涡轮动等;公称通径:1/2"~12";公称压力:150lb~1500lb;适用介质:水、气、油品、天然气和酸碱腐蚀介质。
二、Q347F/W/H/Y铸钢固定球阀主要材质:
| 零件名称 | cf8系列 | cf3系列 | cf8m系列 | cf3m系列 | wcb系列 |
| 阀体 /阀盖 | cf8 | cf3 | cf8m | cf3m | wcb |
| 球体 | f304 | f304l | f316 | f316l | 1cr13 |
| 阀座 | ptfe/ppl | ptfe/ppl | ptfe/ppl | ptfe/ppl | ptfe/ppl |
| 阀杆 | f304 | f304l | f316 | f316l | 1cr13 |
| 填料 /垫片 | ptfe | ptfe | ptfe | ptfe | ptfe |
| 螺栓 | a193-b8 | a193-b8 | a193-b8m | a193-b8m | 35crmoa |
| 螺母 | a191-8m | a191-8m | a191-8m | a191-8m | 45 |
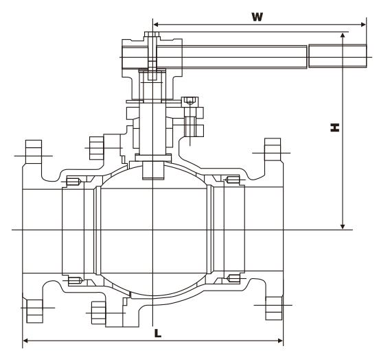
三、Q347F/W/H/Y铸钢固定球阀主要外形尺寸:

| 规格 | 尺寸 (mm) | ||||||||
| inch | mm | l | d | d1 | d2 | b | z-φd | h | w |
| 1/2″ | 15 | 108 | 89 | 60.5 | 35 | 12 | 4-φ15 | 68 | 115 |
| 3/4″ | 20 | 117 | 98 | 70 | 43 | 12 | 4-φ15 | 71 | 130 |
| 1″ | 25 | 127 | 108 | 79.5 | 51 | 12 | 4-φ15 | 82 | 150 |
| 11/2″ | 40 | 165 | 127 | 98.5 | 73 | 15 | 4-φ15 | 107 | 230 |
| 2″ | 50 | 178 | 152 | 120.5 | 92 | 16 | 4-φ19 | 116 | 240 |
| 21/2″ | 65 | 190 | 178 | 139.5 | 105 | 18 | 4-φ19 | 142 | 280 |
| 3″ | 80 | 203 | 190 | 152.5 | 127 | 19 | 4-φ19 | 160 | 310 |
| 4″ | 100 | 229 | 229 | 190.5 | 157 | 24 | 8-φ19 | 185 | 330 |
| 5″ | 125 | 356 | 254 | 216 | 186 | 24 | 8-φ22 | 230 | 600 |
| 6″ | 150 | 394 | 279 | 241.5 | 216 | 26 | 8-φ22 | 250 | 800 |
| 8″ | 200 | 457 | 343 | 298.5 | 270 | 29 | 8-φ22 | 315 | 1000 |
| 10″ | 250 | 533 | 406 | 362 | 324 | 31 | 12-φ25 | 350 | 1200 |
| 1/2″ | 15 | 140 | 95 | 66.5 | 35 | 15 | 4-φ15 | 68 | 115 |
| 3/4″ | 20 | 152 | 117 | 82.5 | 43 | 16 | 4-φ19 | 75 | 130 |
| 1″ | 25 | 165 | 124 | 89 | 51 | 18 | 4-φ19 | 85 | 150 |
| 11/2″ | 40 | 190 | 156 | 114.5 | 73 | 21 | 4-φ22 | 110 | 230 |
| 2″ | 50 | 216 | 165 | 127 | 92 | 22 | 8-φ19 | 120 | 240 |
| 21/2″ | 65 | 241 | 190 | 149 | 105 | 25 | 8-φ22 | 155 | 280 |
| 3″ | 80 | 283 | 210 | 168.5 | 127 | 29 | 8-φ22 | 170 | 310 |
| 4″ | 100 | 305 | 254 | 200 | 157 | 32 | 8-φ22 | 200 | 330 |
| 5″ | 125 | 381 | 279 | 235 | 186 | 35 | 8-φ22 | 245 | 600 |
| 6″ | 150 | 403 | 318 | 270 | 216 | 37 | 12-φ22 | 270 | 800 |
| 8″ | 200 | 502 | 38l | 330 | 270 | 41 | 12-φ2b | 335 | 1000 |
| 10″ | 250 | 568 | 445 | 387.5 | 324 | 48 | 16-φz9 | 380 | 1200 |