服务热线:150 0066 6432
一、ZZVP,ZZCP型自力式微压调节阀产品概述:
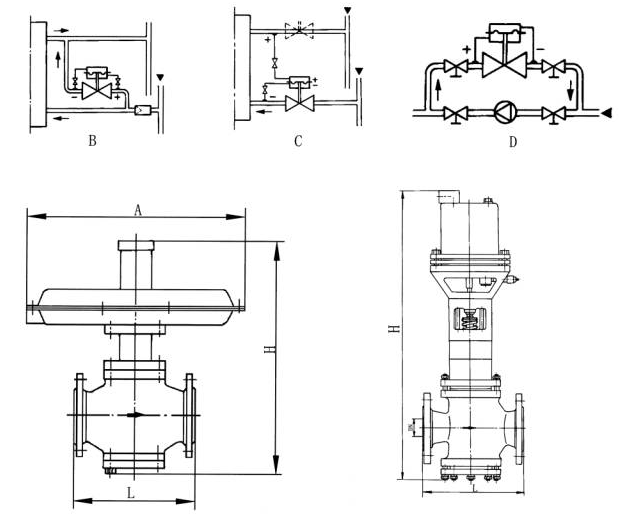
沃茈阀门(上海)有限公司生产销售的ZZVP,ZZCP型自力式微压调节阀是一种不需要外加能源的执行器产品。可用于公称压力pn0.1,pn1.0。差(微)压均可分段调节。从 50mm.w.c至0.1mpa。其用途十分广泛,可用于工业燃烧炉系统,控制两种物料,如煤气、空气流量配比,以达理想燃烧。用于氢冷发电机组密封油系 统,控制密封油与氢气间压力差,以确保可靠密封。当差压阀的低压端通大气即为微压阀(差压阀负压,端压,力为零)。
二、ZZVP,ZZCP型自力式微压调节阀产品特点:
1、无需停止生产即可进行设定值的调整;
2、无填料,阀杆上、下活动时不存在磨擦,上密封可靠;
3、执行机构敏感元件极为灵敏,微小的压力变化会被感测出来;
4、阀体为四通形式,因而k、b型可通用一种阀体。

三、ZZVP,ZZCP型自力式微压调节阀技术参数:
◆主要技术参数和性能指标
公称通径 dn(mm) | 20 | 25 | 32 | 40 | 50 | 65 | 80 | 100 | |
额定流量 系数 kv | zzcp/zzvp | 8 | 11 | 20 | 32 | 50 | 80 | 100 | 160 |
zzcn | 53 | 83 | |||||||
额定行程 (mm) | 6 | 8 | 10 | 15 | 20 | ||||
公称压力 pn(mpa) | 0.10 1.0 | ||||||||
差压调节范围 (kpa) | 0.5 ~ 5.5 5 ~ 10 9 ~ 14 13 ~ 19 18 ~ 24 22 ~ 28 26 ~ 33 31 ~ 38 36 ~ 44 42 ~ 51 49 ~ 58 56 ~ 66 64 ~ 78 76 ~ 90 8 ~ 100 | ||||||||
介质温度 ( ℃ ) | ≤ 80 | ||||||||
调节精度 ( % ) | ≤ 10 | ||||||||
允许泄漏 量 (l/h) | zzcp/zzvp | 10-4 x 阀额定容量 ( ⅳ 级 ) | |||||||
zzcn | 5x10-3 x 阀额定容量 ( ii 级 ) | ||||||||
注:
1、ZZVP,ZZCP公称压力为0.10mpa,zzcn为1.0mpa
2、ZZCN差压调节范围为36~44…88~100kpa

四、ZZVP,ZZCP型自力式微压调节阀规格重量:
◆外形尺寸及重量 单位:mm
dn | 20 | 25 | 32 | 40 | 50 | 65 | 80 | 100 | |
a | 308 | 394 | 308 | 394 | 308 | 394 | 394 | 394 | |
h | zzcp/zzvp | 376 | 465 | 365 | 445 | 445 | 490 | 490 | 510 |
zzcn | 536 | 536 | |||||||
l | zzcp/zzvp | 150 | 160 | 180 | 200 | 230 | 290 | 310 | 350 |
zzcn | 222 | 222 | |||||||
重量 g(kg) | 12 | 13 | 15 | 17 | 20 | 28 | 38 | 43 | |
导压管螺纹接头 | m16x1.5 | ||||||||