服务热线:150 0066 6432
一、J41H/Y国标截止阀介绍
沃茈阀门(上海)有限公司生产销售的J41H/Y国标截止阀属于强制密封式阀门,所以在阀门关闭时,必须向阀瓣施加压力,以强制密封面不泄漏。当介质由阀瓣下方进入阀门时,操作力所需要克服的阻力,是阀杆和填料的摩擦力与由介质的压力所产生的推力,关阀门的力比开阀门的力大,所以阀杆的直径要大,否则会发生阀杆顶弯的故障。近年来,从自密封的阀门出现后,法兰截止阀的介质流向就改由阀瓣上方进入阀腔,这时在介质压力作用下,关阀门的力小,而开阀门的力大,阀杆的直径可以相应地减少。同时,在介质作用下,这种形式的不锈钢气动阀门也较严密。
压力试验
| 公称压力 | 1.6 | 2.5 | 4.0 | 6.4 | 10.0 | 16.0 |
| 强度试验 | 2.4 | 3.8 | 6.0 | 9.6 | 15.0 | 24.0 |
| 水密封试验 | 1.8 | 2.8 | 4.4 | 7.4 | 11.0 | 18.0 |
| 上密封试验 | 1.8 | 2.8 | 4.4 | 7.04 | 11.0 | 18.0 |
| 气密封试验 | 0.4-0.7 | |||||
二、J41H/Y国标截止阀主要零件材料及性能
| 体盖扳 | 阀杆 | 密封面 | 垫片(环) | 填料 | 工作温度℃ | 适用介质 |
| wcb | 2cr13 | 13cr stl 本体材料 尼龙 | 增强柔性石墨 1crl3/柔性石墨 08软钢 0cr18ni9ti ocr18ni12mo2ti | 柔性石墨 增强柔性石墨 sfb-260 sfp-260 | ≤425 | 水、蒸汽、油品 |
| wc1 | 38crmoai 25cr2mov | ≤450 | ||||
| wc6 | ≤540 | |||||
| wc9 | ≤570 | |||||
| zgcr5mo | ≤540 | |||||
| zg1cr18ni9ti | 1cr18ni9ti | ≤200 | 硝酸类 | |||
| zgcr18ni12mo2ti | 1c18ni12mo2ti | ≤200 | 醋酸类 |
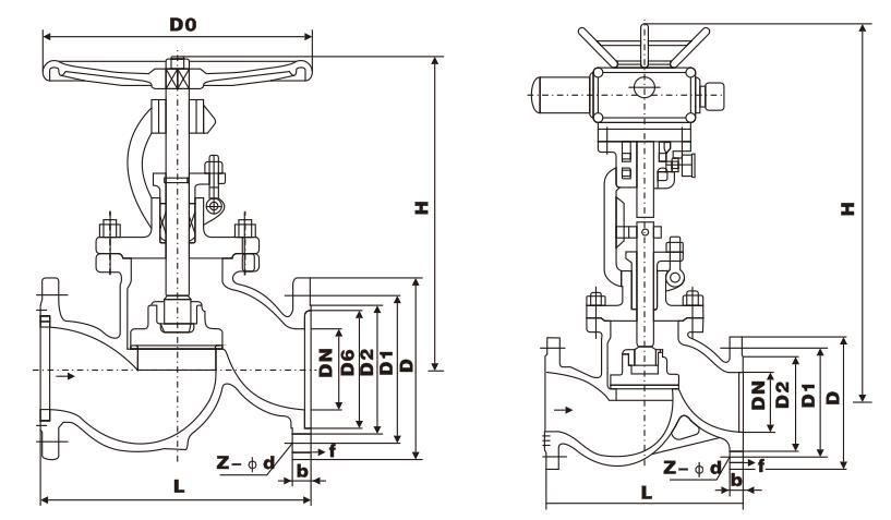
三、J41H/Y国标截止阀主要外形和连接尺寸

公称通径 | 主要外型尺寸和连接尺寸 | ||||||||
l | d | d1 | d2 | b | f | z-d | h | d0 | |
j41h/y-16c j41w-16p j41w-16r j41y-16i | |||||||||
10 | 130 | 90 | 60 | 40 | 14 | 2 | 4-14 | 198 | 120 |
15 | 130 | 95 | 65 | 45 | 16 | 2 | 4-14 | 218 | 120 |
20 | 150 | 105 | 75 | 55 | 16 | 2 | 4-14 | 258 | 140 |
25 | 160 | 115 | 85 | 65 | 16 | 2 | 4-14 | 275 | 160 |
32 | 180 | 135 | 100 | 78 | 18 | 2 | 4-18 | 280 | 180 |
40 | 200 | 145 | 110 | 85 | 18 | 3 | 4-18 | 330 | 200 |
50 | 230 | 160 | 125 | 100 | 18 | 3 | 4-18 | 350 | 240 |
65 | 290 | 180 | 145 | 120 | 18 | 3 | 4-18 | 355 | 280 |
80 | 310 | 195 | 160 | 135 | 20 | 3 | 8-18 | 400 | 280 |
100 | 350 | 215 | 180 | 155 | 22 | 3 | 8-18 | 415 | 320 |
125 | 400 | 245 | 210 | 185 | 24 | 3 | 8-23 | 460 | 360 |
150 | 480 | 280 | 240 | 210 | 24 | 3 | 12-23 | 510 | 400 |
200 | 600 | 335 | 295 | 265 | 26 | 3 | 12-23 | 710 | 400 |
250 | 650 | 405 | 355 | 320 | 30 | 3 | 12-23 | 786 | 450 |
300 | 750 | 460 | 410 | 375 | 30 | 3 | 12-23 | 925 | 500 |
公称通径 | 主要外型尺寸和连接尺寸 | ||||||||||
l | d | d1 | d2 | b | f | z-d | h手 | h电 | d | 电动装置 | |
j41h/y-25 j41w-25p j41w-25r j41y-25i j941h/y-25 j941w-25p j941w-25r j941w-25i | |||||||||||
10 | 130 | 90 | 60 | 40 | 16 | 2 | 4-14 | 198 | - | 120 | - |
15 | 130 | 95 | 65 | 45 | 16 | 2 | 4-14 | 218 | - | 120 | - |
20 | 150 | 105 | 75 | 55 | 16 | 2 | 4-14 | 258 | - | 140 | - |
25 | 160 | 115 | 85 | 65 | 16 | 2 | 4-14 | 275 | - | 160 | - |
32 | 180 | 135 | 100 | 78 | 18 | 2 | 4-18 | 280 | - | 180 | - |
40 | 200 | 145 | 110 | 85 | 18 | 3 | 4-18 | 330 | - | 200 | - |
50 | 230 | 160 | 125 | 100 | 20 | 3 | 4-18 | 350 | 645 | 240 | dzw10 |
65 | 290 | 180 | 145 | 120 | 22 | 3 | 8-18 | 400 | 690 | 280 | dzw10 |
80 | 310 | 195 | 160 | 135 | 22 | 3 | 8-18 | 355 | 715 | 280 | dzw15 |
100 | 350 | 230 | 190 | 160 | 24 | 3 | 8-23 | 415 | 770 | 320 | dzw20 |
125 | 400 | 270 | 220 | 188 | 28 | 3 | 8-25 | 460 | 780 | 360 | dzw30 |
150 | 480 | 300 | 250 | 218 | 30 | 3 | 8-25 | 510 | 875 | 400 | dzw45 |
200 | 600 | 360 | 310 | 278 | 34 | 3 | 12-25 | 710 | 967 | 400 | dzw60 |
250 | 650 | 425 | 370 | 332 | 36 | 3 | 12-30 | 786 | - | 450 | - |
300 | 750 | 485 | 430 | 390 | 40 | 4 | 12-30 | 925 | - | 500 | - |
公称通径 | 主要外型尺寸和连接尺寸 | ||||||||||||
l | d | d1 | d2 | d6 | b | f | f2 | z-d | h手 | h电 | d | 电动装置 | |
j41h/y-40 j41w-40p j41w-40r j41y-40i j941h/y-40 j941w-40p j941w-40r j941w-40i | |||||||||||||
10 | 130 | 90 | 60 | 40 | 35 | 16 | 2 | 2 | 4-14 | 198 | - | 120 | - |
15 | 130 | 95 | 65 | 45 | 40 | 16 | 2 | 4 | 4-14 | 233 | - | 120 | - |
20 | 150 | 105 | 75 | 55 | 51 | 16 | 2 | 4 | 4-14 | 275 | - | 140 | - |
25 | 160 | 115 | 85 | 65 | 58 | 16 | 2 | 4 | 4-14 | 285 | - | 160 | - |
32 | 180 | 135 | 100 | 78 | 66 | 18 | 2 | 4 | 4-18 | 302 | - | 180 | - |
40 | 200 | 145 | 110 | 85 | 76 | 18 | 3 | 4 | 4-18 | 355 | - | 200 | - |
50 | 230 | 160 | 125 | 100 | 88 | 20 | 3 | 4 | 4-18 | 373 | 645 | 240 | dzw10 |
65 | 290 | 180 | 145 | 120 | 110 | 22 | 3 | 4 | 4-18 | 408 | 690 | 280 | dzw10 |
80 | 310 | 195 | 160 | 135 | 121 | 22 | 3 | 4 | 8-18 | 436 | 715 | 320 | dzw20 |
100 | 350 | 230 | 190 | 160 | 150 | 24 | 3 | 4.5 | 8-18 | 480 | 770 | 360 | dzw30 |
125 | 400 | 270 | 220 | 188 | 176 | 28 | 3 | 4.5 | 8-23 | 558 | 782 | 400 | dzw45 |
150 | 480 | 300 | 250 | 218 | 204 | 30 | 3 | 4.5 | 8-25 | 611 | 875 | 400 | dzw60 |
200 | 600 | 375 | 320 | 282 | 260 | 38 | 3 | 4.5 | 12-30 | 720 | 1160 | 400 | dzw90 |
公称通径 | 主要外形尺寸和连接尺寸 | |||||||||
l | d | d1 | d2 | d6 | b | z-d | h | h1 | d0 | |
j41h/y-64 j941h/y-64 j41y-64i j941y-64i | ||||||||||
15 | 170 | 105 | 75 | 55 | 41 | 18 | 414 | 195 | 210 | 140 |
20 | 190 | 125 | 90 | 68 | 51 | 20 | 418 | 228 | 248 | 160 |
25 | 210 | 135 | 100 | 78 | 58 | 22 | 418 | 250 | 275 | 180 |
32 | 230 | 150 | 110 | 82 | 66 | 24 | 423 | 325 | 355 | 200 |
40 | 260 | 165 | 125 | 95 | 76 | 24 | 423 | 360 | 395 | 240 |
50 | 300 | 175 | 135 | 105 | 88 | 26 | 423 | 410 | 450 | 280 |
65 | 340 | 200 | 160 | 130 | 110 | 28 | 823 | 450 | 494 | 320 |
80 | 380 | 210 | 170 | 140 | 121 | 30 | 823 | 485 | 485 | 360 |
100 | 430 | 250 | 200 | 168 | 150 | 32 | 825 | 537 | 537 | 400 |
150 | 550 | 340 | 280 | 240 | 204 | 38 | 834 | 646 | 646 | 450 |
200 | 650 | 405 | 345 | 300 | -- | 44 | 1234 | 813 | 813 | 500 |
j41h/y-100 j941h/y-100 j41y-100i j941y-100i | ||||||||||
15 | 170 | 105 | 75 | 55 | 40 | 20 | 414 | 195 | 210 | 100 |
20 | 190 | 125 | 90 | 68 | 51 | 22 | 418 | 228 | 248 | 120 |
25 | 210 | 135 | 100 | 78 | 58 | 24 | 418 | 250 | 275 | 160 |
32 | 230 | 150 | 110 | 82 | 66 | 24 | 423 | 326 | 348 | 200 |
40 | 260 | 165 | 125 | 95 | 76 | 26 | 423 | 359 | 388 | 240 |
50 | 300 | 195 | 145 | 112 | 88 | 28 | 425 | 414 | 448 | 280 |
65 | 340 | 220 | 170 | 138 | 110 | 32 | 825 | 434 | 477 | 320 |
80 | 380 | 230 | 180 | 148 | 121 | 34 | 825 | 547 | 598 | 400 |
100 | 430 | 265 | 210 | 172 | 150 | 38 | 830 | 621 | 685 | 450 |
125 | 500 | 310 | 250 | 210 | 176 | 42 | 834 | - | - | - |
150 | 550 | 350, | 290 | 250 | 204 | 46 | 1234 | 840 | - | - |
200 | 650 | 430 | 360 | 312 | 260 | 54 | 1241 | 925 | - | - |