服务热线:150 0066 6432
一、沃茈阀门(上海)有限公司生产销售的WJ41H美标(A105)波纹管截止阀其主要结构特点
1、产品结构合理、密封可靠、性能优良、造型美观;
2、密封面堆焊co基硬质合金、耐磨、耐腐、抗摩擦性能好、使用寿命长;
3、阀杆调质及表面氮化处理,有良好的抗腐和抗摩擦性能;
4、双重密封,性能更可靠;
5、阀杆升降位置指示,更直观;
6、零件材质,法兰和对焊编号尺寸可根据实际工况或用户要求合理选配,满足各种工程需要。
二、WJ41H美标(A105)波纹管截止阀技术规范
| 结构形式 | bb-bg-os y |
| 驱动方式 | 手动 |
| 电动 | |
| 设计标准 | asme b16.10、bs1873 |
| 结构长度 | asme b16.10 |
| 连接法兰 | asme b16.5 |
| 试验和检验 | api598 |
三、WJ41H美标(A105)波纹管截止阀产品性能规范
| 公称压力(lb) | 壳体试验压力(mpa) | 密封试验压力(mpa) | 适用温度(℃) | 使用介质 |
| 150 | 3.0 | 2.2 | ≤350℃ | 水、蒸汽、油品等 |
| 300 | 7.5 | 5.5 | ||
| 600 | 15.0 | 11.0 | ||
| 900 | 22.5 | 16.5 |
四、WJ41H美标(A105)波纹管截止阀主要零部件材质
| 序号 | 名称 | 材质 |
| 1 | 阀体 | astm a216-wcb astm a217-wc1、wc6、wc9、c5 astm a351-cf8、cf8m、cf3、cf3m |
| 2 | 阀瓣 | astm a182-gr.f6a astm a182-f22 astm a182-f304、f316、f321、f304l、f316l |
| 3 | 对开圆环 | astm a182-gr.f6a astm a182-f22 astm a182-f304、f316、f321、f304l、f316l |
| 4 | 阀瓣盖 | astm a182-gr.f6a astm a182-f22 astm a182-f304、f316、f321、f304l、f316l |
| 5 | 阀杆 | astm a182-gr.f6a astm a182-f22 astm a182-f304、f316、f321、f304l、f316l |
| 6 | 垫片 | 柔性石墨+不锈钢 |
| 7 | 阀盖 | astm a216-wcb astm a217-wc1、wc6、wc9、c5 astm a351-cf8、cf8m、cf3、cf3m |
| 8 | 波纹管组件 | astm a182-f304、f316、f321、f304l、f316l |
| 9 | 填料 | 柔性石墨 |
| 10 | 填料压盖 | astm a216-wcb astm a217-wc1、wc6、wc9、c5 astm a351-cf8、cf8m、cf3、cf3m |
| 11 | 阀杆螺母 | 铜合金 |
| 12 | 手轮 | astm a536 gr.60-40-18、a216-wcb |
| 13 | 定位片 | 45、wcb、304、316、304l、316l |
| 14 | 双头螺栓 | astm a193-b7、a320-b8、a193-b8m |
| 15 | 六角螺母 | astm a194-2h、a194-8、a194-8m |
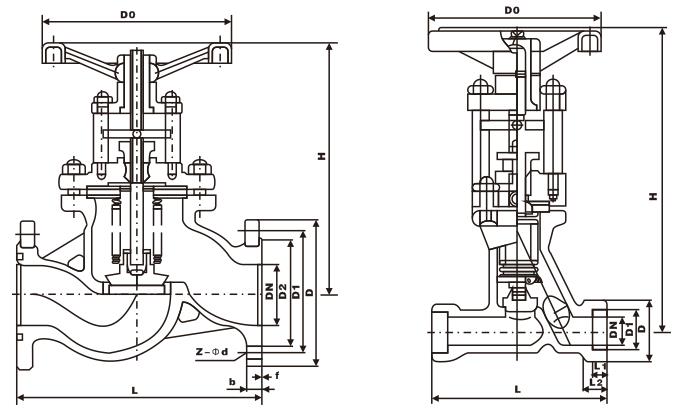
五、WJ41H美标(A105)波纹管截止阀主要尺寸

| 型号 | wj41-150lb | |||||||||||||||
| 压力等级 | 150lb | |||||||||||||||
| 口径 | mm | 15 | 20 | 25 | 32 | 40 | 50 | 65 | 80 | 100 | 125 | 150 | 200 | 250 | 300 | 350 |
| in | 1/2 | 3/4 | 1 | 11/4 | 11/2 | 2 | 21/2 | 3 | 4 | 5 | 6 | 8 | 10 | 12 | 14 | |
| l | 108 | 117 | 127 | 140 | 165 | 203 | 216 | 241 | 292 | 356 | 406 | 495 | 622 | 698 | 787 | |
| h | 241 | 241 | 241 | 280 | 286 | 368 | 387 | 400 | 457 | 520 | 609 | 698 | 762 | 876 | 990 | |
| w | 120 | 140 | 140 | 180 | 200 | 220 | 260 | 280 | 300 | 320 | 340 | 400 | 450 | 450 | 450 | |
| 重量(kg) | 4 | 5 | 6 | 10 | 13 | 18 | 30 | 35 | 55 | 75 | 104 | 200 | 300 | 390 | 610 | |
| 型号 | wj41-300lb | |||||||||||||||
| 压力等级 | 300lb | |||||||||||||||
| 口径 | mm | 15 | 20 | 25 | 32 | 40 | 50 | 65 | 80 | 100 | 125 | 150 | 200 | 250 | 300 | 350 |
| in | 1/2 | 3/4 | 1 | 11/4 | 11/2 | 2 | 21/2 | 3 | 4 | 5 | 6 | 8 | 10 | 12 | 14 | |
| l | 152 | 178 | 203 | 215 | 229 | 267 | 292 | 318 | 356 | 400 | 444 | 559 | 622 | 711 | 762 | |
| h | 241 | 241 | 283 | 320 | 322 | 399 | 438 | 450 | 584 | 610 | 660 | 762 | 850 | 1085 | 1187 | |
| w | 120 | 140 | 140 | 180 | 200 | 220 | 260 | 280 | 300 | 320 | 340 | 400 | 450 | 450 | 450 | |
| 重量(kg) | 4 | 7 | 10 | 15 | 20 | 25 | 30 | 52 | 88 | 115 | 160 | 259 | 420 | 595 | 876 | |
| 型号 | wj41-600lb | |||||||||||||||
| 压力等级 | 600lb | |||||||||||||||
| 口径 | mm | 15 | 20 | 25 | 32 | 40 | 50 | 65 | 80 | 100 | 125 | 150 | 200 | 250 | 300 | 350 |
| in | 1/2 | 3/4 | 1 | 11/4 | 11/2 | 2 | 21/2 | 3 | 4 | 5 | 6 | 8 | 10 | 12 | 14 | |
| l | 165 | 190 | 216 | 229 | 241 | 292 | 330 | 356 | 432 | 508 | 559 | 660 | 787 | 838 | 889 | |
| h | 240 | 280 | 320 | 320 | 390 | 430 | 480 | 508 | 635 | 750 | 914 | 1016 | 1219 | 1330 | 1560 | |
| w | 140 | 140 | 160 | 160 | 180 | 180 | 250 | 250 | 350 | 400 | 450 | 500 | 600 | 720 | 760 | |
| 重量(kg) | 7 | 10 | 16 | 22 | 29 | 35 | 50 | 90 | 150 | 230 | 300 | 510 | 850 | 1120 | 1400 | |
| 型号 | wj41-900lb | |||||||||||||||
| 压力等级 | 900lb | |||||||||||||||
| 口径 | mm | 15 | 20 | 25 | 32 | 40 | 50 | 65 | 80 | 100 | 125 | 150 | 200 | 250 | 300 | 350 |
| in | 1/2 | 3/4 | 1 | 11/4 | 11/2 | 2 | 21/2 | 3 | 4 | 5 | 6 | 8 | 10 | 12 | 14 | |
| l | 229 | 229 | 254 | 279 | 305 | 368 | 419 | 381 | 457 | 559 | 610 | 737 | 838 | 965 | 1029 | |
| h | 280 | 330 | 350 | 430 | 508 | 569 | 430 | 635 | 774 | 860 | 1040 | 1330 | 1560 | 1650 | 1780 | |
| w | 160 | 160 | 180 | 180 | 250 | 250 | 320 | 350 | 450 | 550 | 600 | 720 | 760 | 820 | 890 | |
| 重量(kg) | 10 | 16 | 23 | 37 | 49 | 65 | 75 | 120 | 200 | 350 | 410 | 790 | 1300 | 1500 | 1800 | |